300m2新中式的東方氣韻
-
300m²新中式的東方氣韻
糅合中國藝術與工藝元素于現代設計中,以明快直接而優雅的手法,為中國傳統視象注入現代生命力。“東情西韻”是作品獨“道”的地方。
—陳幼堅
劉彬
設計師 十年經驗
案例賞析
Case Appreciation
項目名稱:思念果嶺
設計面積:300m²
設計機構:河南尚茂裝飾工程有限公司
中年夫妻二人,一個可愛的女兒,以及家中老人。尋一處安穩家園逃離城市的喧囂,開啟一家五口心中的“世外桃園”安逸且悠閑。在這個復式家居里心中是家的期盼,時間中,我們去打造這個未來。
設計師根據業主的需求以及自身專業且經驗豐富的設計理念,合理規劃出了本案設計。
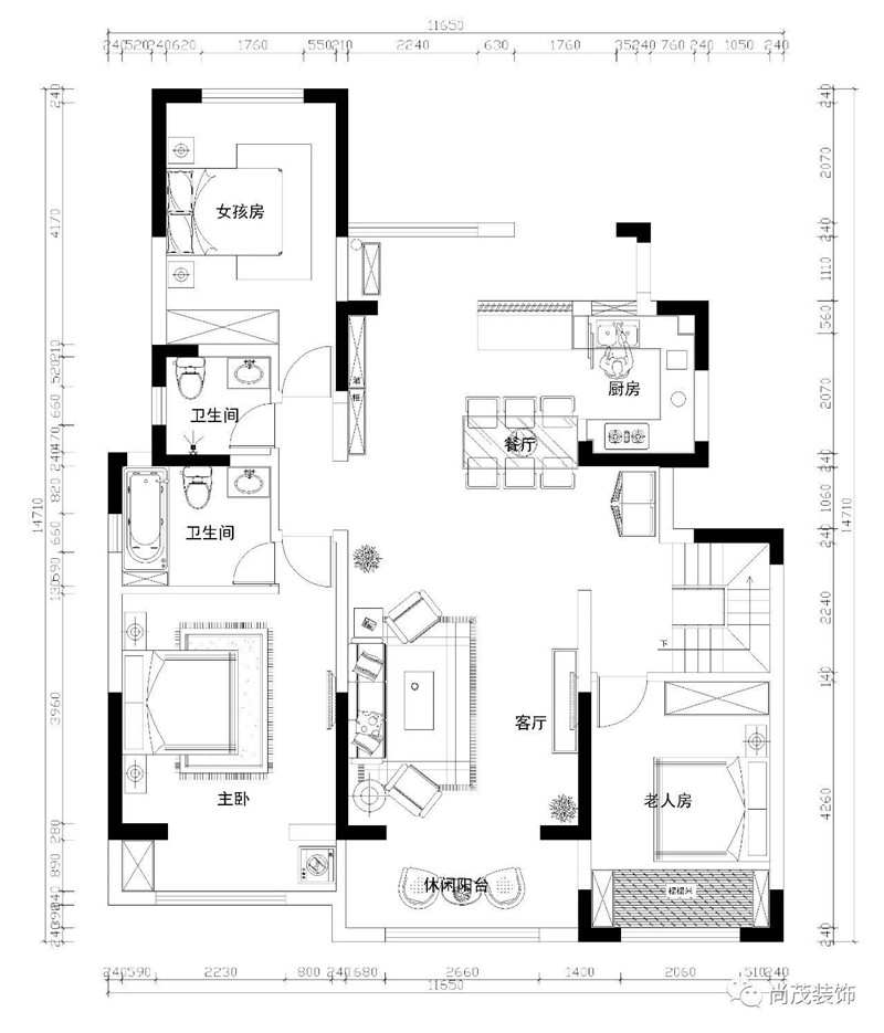
原始戶型圖

一樓

負一層平面方案布局圖
2017年9月初見孟哥跟張老師,孟哥是標準鄭州土著,有點沖動卻仗義,張老師身上自帶一個雅字,在這個家里也寄托著父母對女兒滿滿的愛。他們說,家里一定要放古箏,因為小孩子需要。
最初的風格定義是迎合孟哥做茶葉這個職業定義為中式進行了構思,后來確定軟裝時,孟哥跟張老師覺得還是喜歡偏現代感的,于是最后的落地效果現代跟新中做了混搭。方案階段其實最開始是想把負一樓作為會所的形式,由于負一樓層高較高,為了做大公共區域,設計師采用現澆隔層+挑空的空間處理手法后來他們還是想要有個開放的書房和瑜伽區,就又進行了改稿(設計師構思方案還是要朝著業主想要的方向吧,業主在這個空間結合自己的生活習慣告知設計師一條路,然后方向對了,才可以把路走對,走順)
效果圖

四十不惑的年紀往往追求穩定或突破,
現代與中式的相遇矛盾卻又如此和諧,
散發出它與眾不同的魅力。
陽光透過輕紗灑滿整個客廳,
寧靜高雅的格調簡單而層層豐盈,
線條凝練流暢布局中正大方,
彰顯雄渾邈遠的東方氣魄。

餐廳的設計延續客廳的氛圍,
布置出安逸的觸感、沉浸式的體驗感,
置身其間,悠然畫上,
時而獨自清凈,時而天倫之樂,
窗外風景依舊,四季更迭,
傳達出寄情山水的理想生活追求。

午后的陽光,溫暖著每個角落,
木紋色于暖白色的組合,
是成熟穩重的感覺,
少了稚嫩,多了內涵,
舒緩了空間狹促之感,
平添一份清雅質感。

次臥同樣延續了主臥的色彩搭配,
營造出相同的質感與氛圍,
光影的律動、情感的充盈,
使得室內的虛與實相生,
于含蓄內斂中抒寫生活的溫度。

一入玄關,抬眸可見的便是,
將中式元素與現代材質巧妙結合的精致擺件,
以中式物件,瞬間引人步入清雅含蓄、
端莊豐華的東方境界。

蒔花弄草,煮水烹茶,
伴著朦朧細雨或是煦煦暖陽,
窩在松軟靠枕上,
隨性放空一個下午的悠然時光。
古心生篆刻,絕藝在風雅。
靜心雕琢,
方寸之間與匠人進行一場穿越時空的對話,
高山流水遇知音的酣暢,
只有置身其中方能品味。

運用石材的紋理進行貫通,
灰與黑成就素雅氛圍,
香氛與插花更顯主人細膩心思。
半墻之幅的鏡面可供隨時觀察身體每個細節的變化
浴室地柜離地懸空,不留清潔死角;
壁龕增加收納功能,
給予業主足夠的體貼。

正如《道德經》中所述:
大道無形,美在本體
大制不割,美在自然
大巧若拙,美在樸素
恍兮惚兮,美在朦朧
典雅的、東方的、素靜的
自成一股意境
大概就是它最迷人的地方
微信客戶端預約您的專屬客服/可享受免費量房免費平面設計免費預算報價 到店看方案領取精美禮物專屬優惠! 
上一篇: 2020廣州設計展精彩回顧
下一篇: 現代與中式的碰撞—至簡至素
